1. HOME
  2. 物件情報一覧
  3. 中古マンション
  4. 東急ドエルデュオプラザ川口壱番館

PROPERTY

物件情報一覧

中古マンション

東急ドエルデュオプラザ川口壱番館

おすすめポイント

新耐震基準

大規模マンション

オートロック

 

 

物件概要

価格

2,080万円

管理費

9800円

修繕積立金

9,000円

所在地

埼玉県川口市本町4-13-3

交通

JR/京浜東北線「川口」駅より徒歩5分

建物構造

SRC造

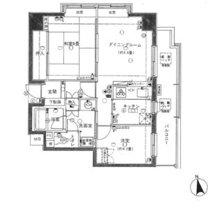
専有面積

壁芯 : 51.42㎡

間取り(詳細)

2DK

向き

所在階 / 階建て

5階  / 14階建て

築年月(築年数)

1986年11月

総戸数 

110戸

土地権利

旧法賃借権・借地期間/2046年11月・地代/7,760円

管理形態

全部委託

管理方式

日勤

管理会社

(株)東急コミュニティー

現況

空室

引渡時期

相談

バルコニー面積

10.16㎡

駐車場 / 月額料金

未定

         
       

地図

まずはご相談ください!

この物件にお問い合わせする

0120-396-356
営業時間 10:00~19:00 定休日 火曜日、水曜日

物件情報一覧